
COTTAGEコテージ梶ヶ浜
お部屋について
基本情報
-
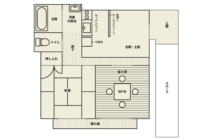
客室
- 木造平屋建 全4棟(うち1棟はバリアフリー対応)
- 和室(8畳)、板の間(8畳・囲炉裏付き)、土間、内風呂、トイレ、キッチン、屋外かまど
- 中庭にテーブル・ベンチあり
-
食事
食事のサービスなし(食材持込可)
※オプションでの提供あり -
休館日
年末年始(12月29日~12月31日、1月1日~1月3日)
-
ご利用料金
- 1棟1泊 17,300円(4人まで) ※小学生未満無料
- 超過1名につき2,400円(1棟定員6名まで)
- 要予約
- ※令和8年4月より、1名様または2名様のご利用の場合に限り、宿泊税を徴収させていただきます(1人1泊当たり200円)。
-
ご利用時間
- チェックイン 14:00/チェックアウト 10:00
- チェックアウト延長 2,400円(最大12:00まで)
※繁忙期は延長がお受けできない場合があります。
設備・備品等
-
室内設備
- 家電:テレビ、エアコン、炊飯器、冷蔵庫、ポット、電子レンジ
- 調理器具:ガスレンジ、鍋、フライパン、ざる、おたま、いろり鍋、南部鉄瓶、羽釜など
- 食器類:茶碗、皿(大・小)、深皿、ちょこ、とっくり、箸、スプーン、フォーク、湯のみ、急須など
- 寝具:掛け布団、敷布団、マットレス、枕、シーツ、枕カバー
-
アメニティ
タオル、バスタオル、歯ブラシ、ドライヤー、ボディソープ、リンス&シャンプー
- 以下のものについてはお客様にてご用意・ご持参ください
- 常備薬、着替え類(下着・寝間着など)、食材・調味料・バーベキューコンロ・炭・薪(バーベキューや囲炉裏やかまどを使用する場合)
POINT
-

囲炉裏を囲む、贅沢なひととき。
普段は重厚な一枚板の机。取り外せば、本格的な囲炉裏が現れます。上部には大型換気扇を完備していますが、目隠しされているため雰囲気はそのまま。
※コテージ室内でのBBQは禁止となります。屋外での実施をお願いします。
-

かまどのある暮らし。
敷地の外にはかまどがあり、ご飯を炊くことも可能。テーブルとベンチも備えているため、外でBBQを楽しむなど、季節に合わせた過ごし方が広がります。
※かまどで使う羽釜といろり鍋は現地にございます。BBQコンロの貸出しはありませんので、各自でご用意ください。
-

広々とした土間と台所。
開放感のある土間には台所が併設されており、調理から食事までが自然につながる設計。人が集まってもゆとりのある、使い勝手の良い空間です。
- お食事について
-
コテージ梶ヶ浜では、基本的に食事の提供は行っておりません。食材を自由に持ち込みいただき、お客様にて調理いただく自炊スタイルとなっております。ご希望に応じて、選べる食材セットのご提供や料理人が現地で腕をふるう出張シェフもご用意しています。ぜひ、お好みのスタイルでお食事をお楽しみください。
ご予約について
ご予約は、電話またはメールにて承っております。特別な場合を除き、施設からの予約確認とお客様の事前振込をもって、正式なご予約完了となります。 空き状況は「予約状況カレンダー」ページにて、あらかじめ残りの戸数をご確認ください。
また、予約方法による優先順位は、①来所 ②電話 ③ホームページからのお問い合わせメールとなります。
③について
予約可能日の営業前(〜8:30)にメール頂いても、優先順位は①②の後になりますのでご了承ください。
お電話でのご予約
※受付時間 8:30〜17:00
お問い合わせ
ご予約・お問い合わせご予約時の注意事項
- ご予約受付後、ご利用料金のご請求書をお送りいたしますので、振込期限(概ね2週間以内)までにお振込みください。お振り込みが確認できない場合、宿泊予約をキャンセルさせていただく場合がございます。お振り込み前にキャンセルされる場合でも必ず施設にご連絡ください。
- 宿泊料金に差額が発生する場合(5人目、6人目等)は、利用日当日、受付にて差額をお支払いください。
- お振込みいただいた宿泊料金につきましては、原則としてキャンセルをされた場合においてもご返還ができません(呉市ふるさと体験交流施設設置条例第6条の4)。
- セルフ食材提供は当日現地払いとなります(ご予約は2週間前まで)。

































